Karel Doormanlaan 44
Woudenberg
Wonen met uitzicht, ruimte én comfort
Op misschien wel één van de allermooiste plekken in de geliefde Zeeheldenbuurt ligt deze verrassend ruime en volledig gemoderniseerde eengezinswoning. Hier woon je met vrij uitzicht over een parkachtige omgeving met vijverpartij – een zeldzame combinatie van rust, groen en wooncomfort. De woning is de afgelopen jaren grondig vernieuwd en beschikt over uitbouwen aan zowel de voor- als achterzijde, wat zorgt voor extra leefruimte en licht.
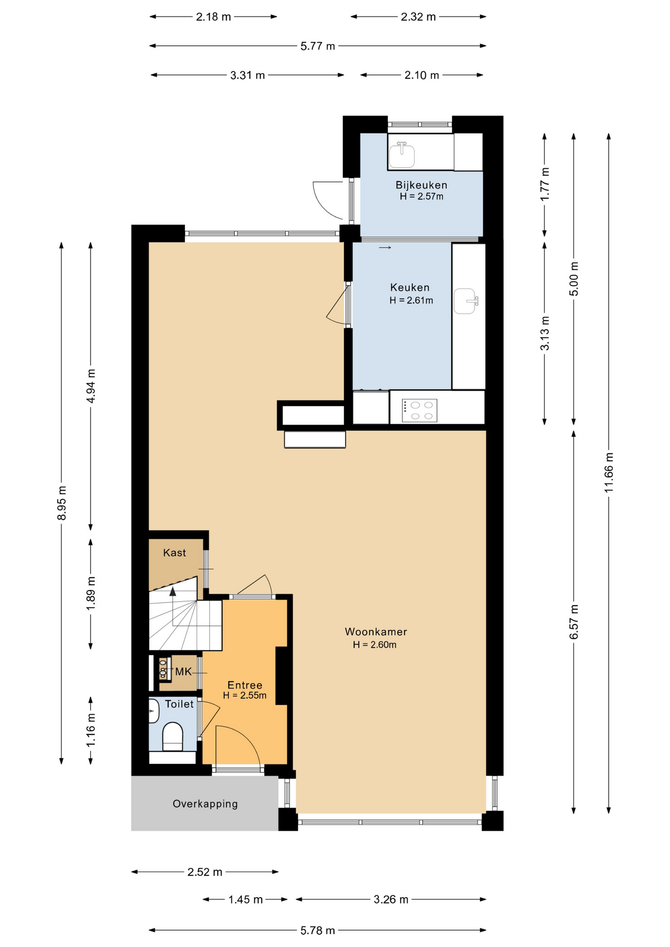
Begane grond
Je komt binnen in een verzorgde entree met moderne, volledig betegelde toiletruimte met vrijhangend toilet en fonteintje. De royale woonkamer baadt in het daglicht dankzij de uitgebouwde erker met grote raampartijen en biedt een prachtig uitzicht op het groen. De gesloten keuken is uitgevoerd in landelijke stijl en ingericht met een hoekopstelling, composiet werkblad en hoogwaardige inbouwapparatuur zoals een koelkast, inductiekookplaat met afzuigkap en oven. Aangrenzend bevindt zich de praktische bijkeuken met een tweede keukenblok, spoelgedeelte en directe toegang tot de achtertuin.
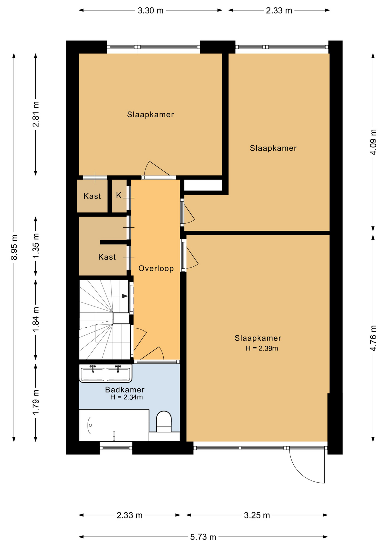
Eerste verdieping
Op de ruime overloop vind je een riante vaste kast met dubbele deuren en nog een kleinere vaste kast . De verdieping telt drie comfortabele slaapkamers van circa 9 m²,
11 m² en de aan de voorkant gelegen uitgebouwde hoofdslaapkamer van ruim 15,5 m². De luxe, volledig betegelde badkamer is voorzien van een dubbele wastafel, een comfortabel ligbad en een tweede vrijhangend toilet.
Tweede verdieping
Via een vaste trap bereik je de ruime voorzolder met opstelling voor de cv-ketel en aansluiting voor de wasmachine. Hier bevindt zich een royale vierde slaapkamer met dakkapel. Daarnaast is er op deze verdieping nog een vijfde slaapkamer met een Velux dakvenster.
Tuin
De fraai aangelegde achtertuin biedt volop privacy en is ingericht met groen en sierbestrating. Verder beschikt de tuin over een achterom en een stenen berging met elektra – ideaal voor fietsen en opslag.
Woonomgeving
Alle dagelijkse voorzieningen zoals winkels en scholen bevinden zich op loopafstand. Woudenberg staat bekend als een vriendelijk en groen dorp, omringd door de prachtige natuur van de Utrechtse Heuvelrug en de Gelderse Vallei. Tegelijkertijd zijn steden als Amersfoort en Utrecht snel en gemakkelijk bereikbaar.
Kortom: een instapklare, verrassend ruime woning op een unieke locatie waar je elke dag geniet van rust, ruimte en comfort. Maak snel een afspraak en laat je verrassen!


