Ambachtsweg 5h
Maarsbergen
Ondernemers opgelet!
Deze bedrijfsunit gebouwd in 2020 is te koop. U vindt hier een multifunctionele bedrijfsruimte op de begane grond en een keurig afgewerkte kantoorruimte op de eerste verdieping.
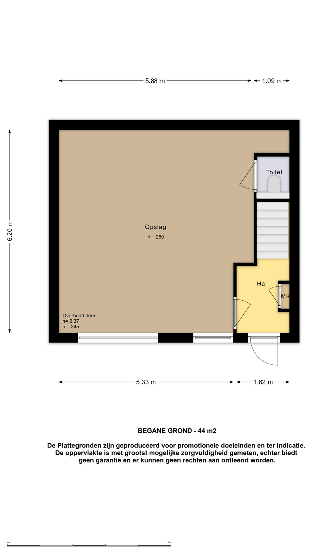
Hal met trapopgang naar de kantoorruimte op de 1ste verdieping en een deur naar de bedrijfsruimte. De bedrijfsruimte van circa 44 m² heeft een overheaddeur en toiletruimte.
De indeling van de kantoorruimte is als volgt overloop met een pantry/keuken en twee separate kantoorruimtes. Bij de bedrijfsunit behoort 1 eigen parkeerplaats
Deze nette bedrijfsruimte is centraal gelegen op de grens van de Utrechtse Heuvelrug en de Gelderse Vallei, omringd door bos en in de directe nabijheid van de op- en afritten van de A12. Met eigen vervoer is het gebouw, zowel via de provinciale wegen als via de snelwegen, goed bereikbaar. Openbaar vervoer is op loopafstand.
Voorzieningen;
- Veel daglichttoetreding;
- Te openen ramen;
- Systeemplafonds met (ingebouwde) verlichtingsarmaturen;
- Eigen pantry/keuken
- Deze ruimte heeft airco voor koeling in de zomer en warmte in de winter
- Alarm installatie.
- Voldoende parkeergelegenheid op het omliggende terrein
- De service kosten zijn circa € 115,- per maand.
Aanvaarding
In overleg.


